00件
最近見た物件
00件
検討リスト
LIXIL不動産ショップ テン > A20014-高島
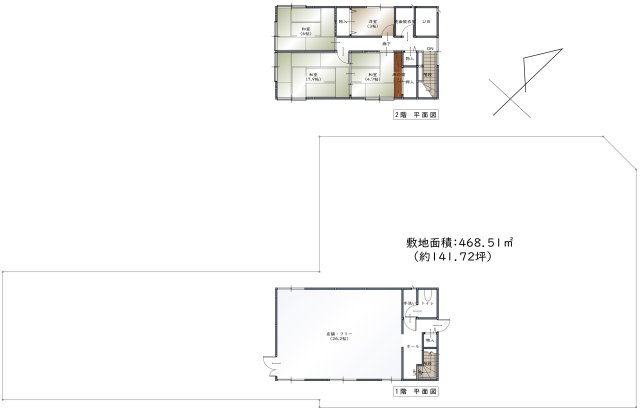
□土地141坪
□4+店舗(K)
□駐車6台以上可能
□琵琶湖まで徒歩5分
魚釣りにバーベキュー家族のイベントが楽しめますね!
両面道路の角地で陽当り通風良好です!











(※元利均等方式 金利5.00%まで ※返済年数5~50年まで入力できます)
(※ボーナスは年2回で計算しています。1000万円まで入力できます)
(※物件購入時、その他諸費用が発生する場合がございます)
| 所在地 | 滋賀県高島市永田 | ||
|---|---|---|---|
| 交通 | |||
| 間取り/詳細 | 4K/ | 建物面積(坪数) | 108.42㎡(32.79坪) |
| 価格 | 1,000万円 | ||
| 駐車場/月額料金 | -/- | ||
| 土地の敷金/保証金 | -/- | 借地料/借地期間 | -/- |
| 土地権利 | 所有権 | 土地面積(坪数) | 468.51㎡(141.72坪) |
| 傾斜地部分面積 | - | 路地状敷地 | - |
| 私道負担面積/セットバック | -/無 | 高圧線下面積 | - |
| 地目/地勢 | 宅地/平坦 | 接道状況 | 一方(北 公道 6.0m)(南 公道 間口 6.0m)(西 公道 6.0m) |
| 建ぺい率/容積率 | 70%/200% | 用途地域 | 無指定 |
| 都市計画 | 非線引区域 | 種別/構造 | 中古一戸建/軽量鉄骨 |
| 階建 | 2階建 | 築年月(築年数) | 1991年 2月 (築34年) |
| 総区画数/販売区画数 | 1区画/1区画 | 向き | - |
| 現況 | 空家 | その他の法令上の制限 | - |
| 取引態様/引渡時期 | 専任媒介/相談 | 建築確認番号 | - |
| 物件番号 | 89048709 | 取引条件の有効期限 | 2025年12月12日 |
| 設備条件 |
|
||
| 取扱会社 |
|
||
| QRコード |
このQRコードを読み取ることで、スマホでも物件情報を確認できます。 |
||
※地図上に表示される物件の位置は付近住所に所在することを表すものであり、実際の物件所在地とは異なる場合がございます。
高島市の町名から探す
高島市にある駅から探す
A20014-高島周辺の駅から探す