00件
最近見た物件
00件
検討リスト
LIXIL不動産ショップ テン > S21928-錦林











(※元利均等方式 金利5.00%まで ※返済年数5~50年まで入力できます)
(※ボーナスは年2回で計算しています。1000万円まで入力できます)
(※物件購入時、その他諸費用が発生する場合がございます)
| 所在地 | 京都府京都市左京区岡崎西天王町 | ||
|---|---|---|---|
| 交通 | |||
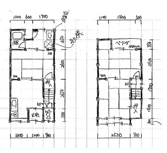
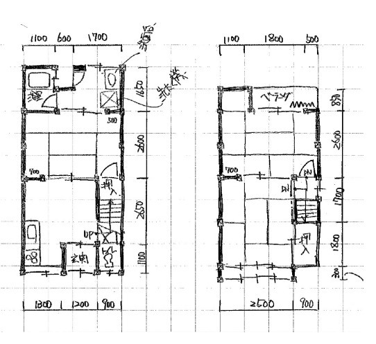
| 間取り/詳細 | 3DK/ | 建物面積(坪数) | 44.78㎡(13.54坪) |
| 価格 | 1,800万円 | ||
| 駐車場/月額料金 | -/- | ||
| 土地の敷金/保証金 | -/- | 借地料/借地期間 | -/- |
| 土地権利 | 所有権 | 土地面積(坪数) | 37.54㎡(11.35坪) |
| 傾斜地部分面積 | - | 路地状敷地 | - |
| 私道負担面積/セットバック | -/無 | 高圧線下面積 | - |
| 地目/地勢 | 宅地/平坦 | 接道状況 | 一方(北 私道 4.0m 間口 3.7m) |
| 建ぺい率/容積率 | 60%/200% | 用途地域 | 第二種中高層住居専用 |
| 都市計画 | 市街化区域 | 種別/構造 | 中古一戸建/木造 |
| 階建 | 2階建 | 築年月(築年数) | 1979年 7月 (築46年) |
| 総区画数/販売区画数 | 1区画/1区画 | 向き | - |
| 現況 | 空家 | その他の法令上の制限 | 準防火地域 |
| 取引態様/引渡時期 | 仲介/相談 | 建築確認番号 | - |
| 物件番号 | 91699139 | 取引条件の有効期限 | 2026年03月26日 |
| 設備条件 |
|
||
| 備考 | 売主の契約不適合責任免責 増築未登記部分有(洗面所約3.3㎡) 建蔽率超過 | ||
| 取扱会社 |
|
||
| QRコード |
このQRコードを読み取ることで、スマホでも物件情報を確認できます。 |
||
※地図上に表示される物件の位置は付近住所に所在することを表すものであり、実際の物件所在地とは異なる場合がございます。
京都市左京区以外の市区町村から探す
京都市左京区の町名から探す
京都市左京区にある駅から探す