00件
最近見た物件
00件
検討リスト
LIXIL不動産ショップ テン > S11891-市原野
閑静な住宅地の売り土地です! 建築条件付(建築プラン有り) 京都バス「洛北グリーンハイツ前」停より徒歩2分 陽当り・通風良好











(※元利均等方式 金利5.00%まで ※返済年数5~50年まで入力できます)
(※ボーナスは年2回で計算しています。1000万円まで入力できます)
(※物件購入時、その他諸費用が発生する場合がございます)
| 所在地 | 京都府京都市左京区静市市原町 | ||
|---|---|---|---|
| 交通 | |||
| 価格 | 1,100万円 | ||
| 土地の敷金/保証金 | -/- | 借地料/借地期間 | -/- |
| 土地面積(坪数) | 132.75㎡(40.15坪) | 坪単価 | 27.4万円 |
| 私道負担面積/セットバック | -/無 | 高圧線下面積 | - |
| 傾斜地部分面積 | - | 路地状敷地 | - |
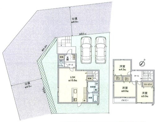
| 土地権利 | 所有権 | 接道状況 | 角地(北西 公道 6.0m 間口 8.5m)(南西 公道 6.0m 間口 14.5m) |
| 都市計画 | 市街化区域 | 用途地域 | 第一種低層住居専用 |
| 建築条件 | - | 地目/地勢 | 宅地/- |
| 建ぺい率 | 40% | 容積率 | 60% |
| 総区画数 | 1区画 | 販売区画数 | 1区画 |
| 国土法届出要否 | 不要 | その他の法令上の制限 | - |
| 取引態様 | 仲介 | 現況 | 更地 |
| 引渡時期 | 相談 | 引渡条件 | - |
| 最適用途 | 住宅用地 | ||
| 物件番号 | 96649846 | 取引条件の有効期限 | 2025年11月21日 |
| 設備条件 |
|
||
| 備考 |
【新築プラン】3LDK+ウッドデッキ付き 土地:1200万円 建物1799万円 確認申請手数料:120万円 外構費:110万円 (各税込み) ウッドデッキ費用別途要 土地先行決済要 売主指定司法書士 |
||
| 取扱会社 |
|
||
| QRコード |
このQRコードを読み取ることで、スマホでも物件情報を確認できます。 |
||
※地図上に表示される物件の位置は付近住所に所在することを表すものであり、実際の物件所在地とは異なる場合がございます。
S11891-市原野に関するこだわり条件から探す
京都市左京区以外の市区町村から探す
京都市左京区の町名から探す
京都市左京区にある駅から探す