00件
最近見た物件
00件
検討リスト
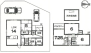
LIXIL不動産ショップ テン > K41303-Ⅰ+Ⅱ紫野
市バス「建勲神社前」停徒歩3分の新築戸建です。Ⅰ号地+Ⅱ号地一括プラン。
◇木造2階建て、3LDK、1BOX車&軽自動車駐車可能
◇南向きで日当たり良好
◇小学校徒歩2分で小さなお子様も安心











(※元利均等方式 金利5.00%まで ※返済年数5~50年まで入力できます)
(※ボーナスは年2回で計算しています。1000万円まで入力できます)
(※物件購入時、その他諸費用が発生する場合がございます)
| 所在地 | 京都府京都市北区紫野東舟岡町 | ||
|---|---|---|---|
| 交通 | |||
| 間取り/詳細 | 3LDK/ | 建物面積(坪数) | 85.05㎡(25.72坪) |
| 価格 | 4,180万円 | ||
| 駐車場/月額料金 | 有(2台)/0円 | ||
| 土地の敷金/保証金 | -/- | 借地料/借地期間 | -/- |
| 土地権利 | 所有権 | 土地面積(坪数) | 100.82㎡(30.49坪) |
| 傾斜地部分面積 | - | 路地状敷地 | - |
| 私道負担面積/セットバック | 17.15㎡/無 | 高圧線下面積 | - |
| 地目/地勢 | 宅地/- | 接道状況 | 一方(南 私道 2.9m 間口 8.6m) |
| 建ぺい率/容積率 | 60%/200% | 用途地域 | 第一種住居 |
| 都市計画 | 市街化区域 | 種別/構造 | 新築一戸建/木造 |
| 階建 | 2階建 | 築年月(築年数) | 2026年 3月 (予定) |
| 総区画数/販売区画数 | 1区画/1区画 | 向き | - |
| 現況 | 未着工 | その他の法令上の制限 | - |
| 取引態様/引渡時期 | 仲介/相談 | 建築確認番号 | - |
| 物件番号 | 97287328 | 取引条件の有効期限 | 2025年11月28日 |
| 設備条件 |
|
||
| 備考 |
土地先行決済 外構費用50万円、建築確認申請費用100万円、水道負担金50万円、全て税込 省エネ基準適合住宅 私道負担面積(約17.15㎡)に道路後退面積を含む |
||
| 取扱会社 |
|
||
| QRコード |
このQRコードを読み取ることで、スマホでも物件情報を確認できます。 |
||
※地図上に表示される物件の位置は付近住所に所在することを表すものであり、実際の物件所在地とは異なる場合がございます。
京都市北区の町名から探す