00件
最近見た物件
00件
検討リスト
LIXIL不動産ショップ テン > K51314-アウルグラン北山
地下鉄「北大路」駅バス乗車12分、市バス「大宮田尻町」停徒歩4分の中古マンションです。5階建ての4階部分。南向き。天気が良ければ室内より「大文字」を望むことができます。オーナーチェンジ物件です。











(※元利均等方式 金利5.00%まで ※返済年数5~50年まで入力できます)
(※ボーナスは年2回で計算しています。1000万円まで入力できます)
(※物件購入時、その他諸費用が発生する場合がございます)




| 所在地 | 京都府京都市北区大宮南林町 | ||
|---|---|---|---|
| 交通 | |||
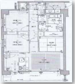
| 間取り/詳細 | 3LDK | 専有面積 | 74.04㎡ |
| バルコニー面積 | 12.16㎡ | ルーフバルコニー面積/テラス面積/専用庭面積 | -/-/- |
| 価格 | 3,680万円 | ||
| 管理費 | 15,200円 | 駐車場/月額料金 | 空有/ 月額:9,000円~11,000円 |
| 利回り | 表面4.57%/- | ||
| 修繕積立金 | 16,900円 | 修繕積立基金 | - |
| 土地権利 | 所有権 | 国土法届出要否 | 不要 |
| 用途地域 | 第一種中高層住居専用 | 地勢 | - |
| 種別/構造 | 中古マンション/鉄筋コンクリート | 向き | 南 |
| 築年月(築年数) | 2007年 8月 (築18年) | ||
| 所在階/階建 | 4階/5階建 | 棟総戸数/販売戸数 | 21戸/1戸 |
| 管理組合有無 | 有 | 管理形態 | 管理会社に全部委託 |
| 管理員の勤務形態 | 日勤 | 管理会社 | ㈱大京アステージ |
| 取引態様 | 仲介 | 現況 | 賃貸中 |
| 引渡し | 即時 | 建築確認番号 | - |
| 物件番号 | 97622932 | 取引条件の有効期限 | 2026年03月19日 |
| 設備条件 |
|
||
| 備考 |
賃貸中(月額14万円)、表面利回り:4.57% 次回賃貸借契約更新:2026年8月 |
||
| 取扱会社 |
|
||
| QRコード |
このQRコードを読み取ることで、スマホでも物件情報を確認できます。 |
||
※地図上に表示される物件の位置は付近住所に所在することを表すものであり、実際の物件所在地とは異なる場合がございます。
K51314-アウルグラン北山に関するこだわり条件から探す
京都市北区以外の市区町村から探す