00件
最近見た物件
00件
検討リスト
LIXIL不動産ショップ テン > K30187-紫野
市バス「大徳寺前」停徒歩3分の中古テラスハウスです。
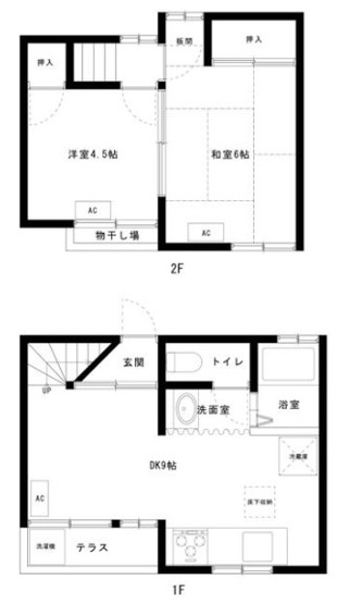
◇鉄骨造、2DK。
◇2019年3月リノベーション済、おしゃれな内装です!











(※元利均等方式 金利5.00%まで ※返済年数5~50年まで入力できます)
(※ボーナスは年2回で計算しています。1000万円まで入力できます)
(※物件購入時、その他諸費用が発生する場合がございます)
| 所在地 | 京都府京都市北区紫野雲林院町 | ||
|---|---|---|---|
| 交通 | |||
| 間取り/詳細 | 2DK/ | 建物面積(坪数) | 38.56㎡(11.66坪) |
| 価格 | 2,380万円 | ||
| 駐車場/月額料金 | 無/- | ||
| 土地の敷金/保証金 | -/- | 借地料/借地期間 | -/- |
| 土地権利 | 所有権 | 土地面積(坪数) | 22.20㎡(6.71坪) |
| 傾斜地部分面積 | - | 路地状敷地 | - |
| 私道負担面積/セットバック | 4.21㎡/無 | 高圧線下面積 | - |
| 地目/地勢 | 宅地/- | 接道状況 | 一方(東 6.0m 間口 10.4m) |
| 建ぺい率/容積率 | 60%/200% | 用途地域 | 準工業/近隣商業 |
| 都市計画 | - | 種別/構造 | 中古テラスハウス/鉄骨造 |
| 階建 | 2階建 | 築年月(築年数) | 1982年 3月 (築43年) |
| 総区画数/販売区画数 | 1区画/1区画 | 向き | - |
| 現況 | 空家 | その他の法令上の制限 | - |
| 取引態様/引渡時期 | 仲介/即時 | 建築確認番号 | - |
| 物件番号 | 80079736 | 取引条件の有効期限 | 2025年12月20日 |
| 設備条件 |
|
||
| 備考 |
2019年3月リノベーション済 水廻りの新調(浴室・キッチン・トイレ・洗面等)、物干しスペース床張替、外壁塗装、給湯器新調、内装やり替え等 ゲストハウス、宿泊施設不可 区分所有の建築物につき、単独建替不可 売主の契約不適合責任免責 現状有姿取引 |
||
| 取扱会社 |
|
||
| QRコード |
このQRコードを読み取ることで、スマホでも物件情報を確認できます。 |
||
※地図上に表示される物件の位置は付近住所に所在することを表すものであり、実際の物件所在地とは異なる場合がございます。
京都市北区以外の市区町村から探す
京都市北区の町名から探す