00件
最近見た物件
00件
検討リスト
LIXIL不動産ショップ テン > K21924-紫竹
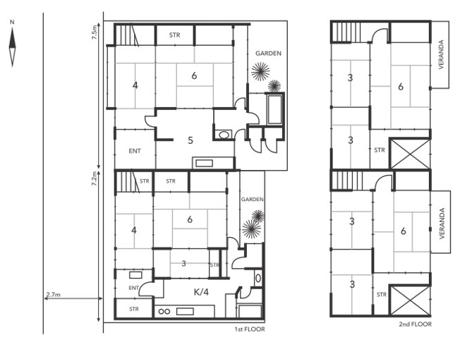
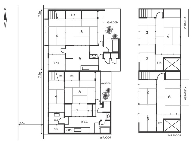
市バス「上堀川」停徒歩2分の中古戸建です。連棟2戸1。
◇木造5K庭付き、6K庭付き
◇未改装の京町家
◇周辺施設充実











(※元利均等方式 金利5.00%まで ※返済年数5~50年まで入力できます)
(※ボーナスは年2回で計算しています。1000万円まで入力できます)
(※物件購入時、その他諸費用が発生する場合がございます)
| 所在地 | 京都府京都市北区紫竹下芝本町 | ||
|---|---|---|---|
| 交通 | |||
| 間取り/詳細 | 5DK/ | 建物面積(坪数) | 170.76㎡(51.65坪) |
| 価格 | 4,500万円 | ||
| 駐車場/月額料金 | 無/- | ||
| 土地の敷金/保証金 | -/- | 借地料/借地期間 | -/- |
| 土地権利 | 所有権 | 土地面積(坪数) | 130.13㎡(39.36坪) |
| 傾斜地部分面積 | - | 路地状敷地 | - |
| 私道負担面積/セットバック | 11.31㎡/要 9.58㎡ | 高圧線下面積 | - |
| 地目/地勢 | 宅地/平坦 | 接道状況 | 一方(西 私道 2.6m 間口 14.4m) |
| 建ぺい率/容積率 | 80%/300% | 用途地域 | 近隣商業 |
| 都市計画 | 市街化区域 | 種別/構造 | 中古一戸建/木造 |
| 階建 | 2階建 | 築年月(築年数) | 1935年 1月 (築91年) |
| 総区画数/販売区画数 | 1区画/1区画 | 向き | - |
| 現況 | 空家 | その他の法令上の制限 | - |
| 取引態様/引渡時期 | 仲介/即時 | 建築確認番号 | - |
| 物件番号 | 91880517 | 取引条件の有効期限 | 2026年02月26日 |
| 設備条件 |
|
||
| 備考 |
京町家プロフィール取得済 売主の不適合責任免責 現状有姿取引 建物は老朽化が進んでおり、要修繕 |
||
| 取扱会社 |
|
||
| QRコード |
このQRコードを読み取ることで、スマホでも物件情報を確認できます。 |
||
※地図上に表示される物件の位置は付近住所に所在することを表すものであり、実際の物件所在地とは異なる場合がございます。
京都市北区以外の市区町村から探す
京都市北区の町名から探す